

(2007-2015) The Galleries Plaza
client : Limitless L.L.Ctypology : Landscape
services : Landscape Architecture & Engineering
where : Dubai, United Arab Emirates
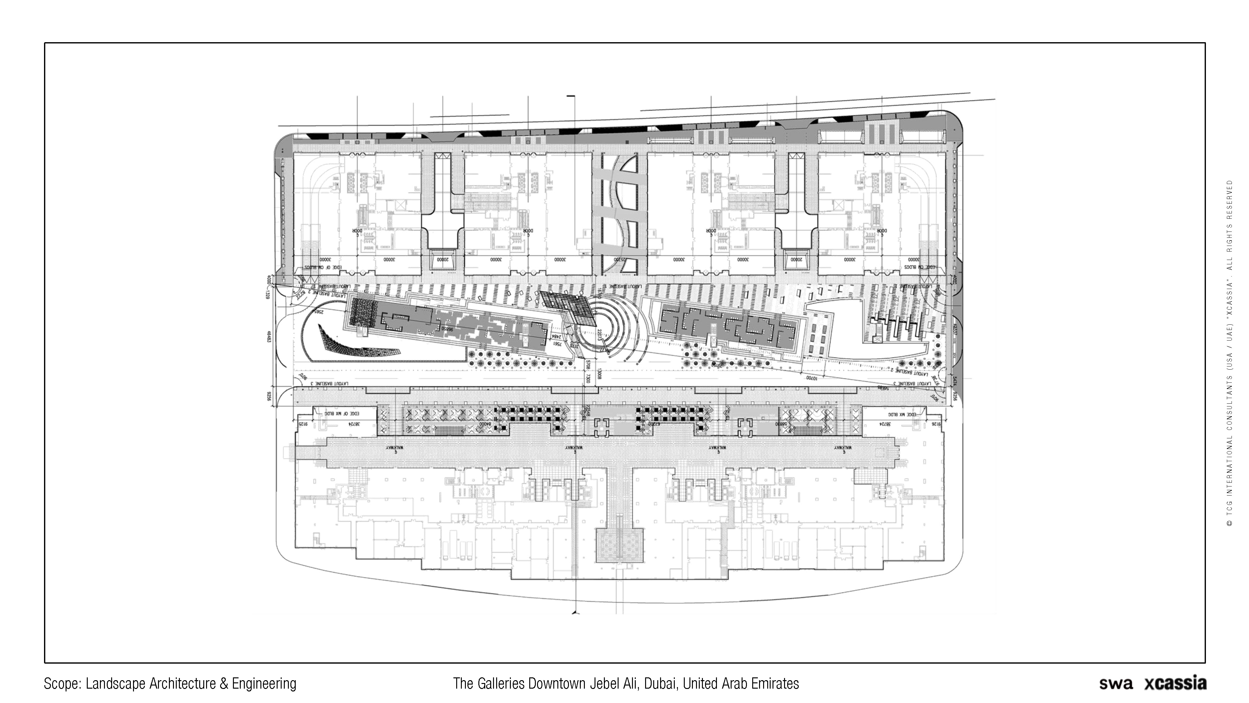
This 22 acre landscaping scheme forms part of the Downtown Jebel Ali (DJA) Master Plan developed by Limitless LLC, a sister company of Nakheel and is located within Zone 1, Block 2 of DJA. It is flanked by a 229,000 sqm mixed-use building designed by Pei Partnership Architects and xCassia on one side (parcels MX01-04) and a four-building commercial block by Burt Hill Architects on the other (CM01-04).
The 30,000 sqm AED 110 Million project consists of a central plaza, interactive water features, pedestrian cafés and gathering spaces, custom site furnishings and graphics, plaza elements, lighting, rooftop gardens and a streetscape design to connect the block to future development areas. Most of the central plaza area is over a below-grade parking structure which offered some additional site designs and challenges.
SWA Houston provided all landscape architectural design services including management of specialty lighting, waterscape, plaza objects, graphic design and commissioned
CASSIA & Partners (Dubai) was SWA’s Consultant and Engineer of Record over the design and construction oversight of the project with a scope of services including the entire engineering support services of the landscaping scheme which included the complex structural engineering designs for the build-up over the two underground parking levels of CM01-04 below the central plaza, all surface structural and building services (MEP) to the various components of the design which also included extensive water and lighting features. Both firms provided construction supervision oversight. Other creative consultants included Environmental Design, Fluidity Design Consultants, SURROUND Creative and Sweeney & Associates.
