

(2000) Al Souaidi Villa Complex
client : Mrs. Salama Al Souaiditypology : Residential
services : Architecture
where : Abu Dhabi, United Arab Emirates
Retrospective 1991-2000 video: https://www.instagram.com/p/CPyTSojDdNX/
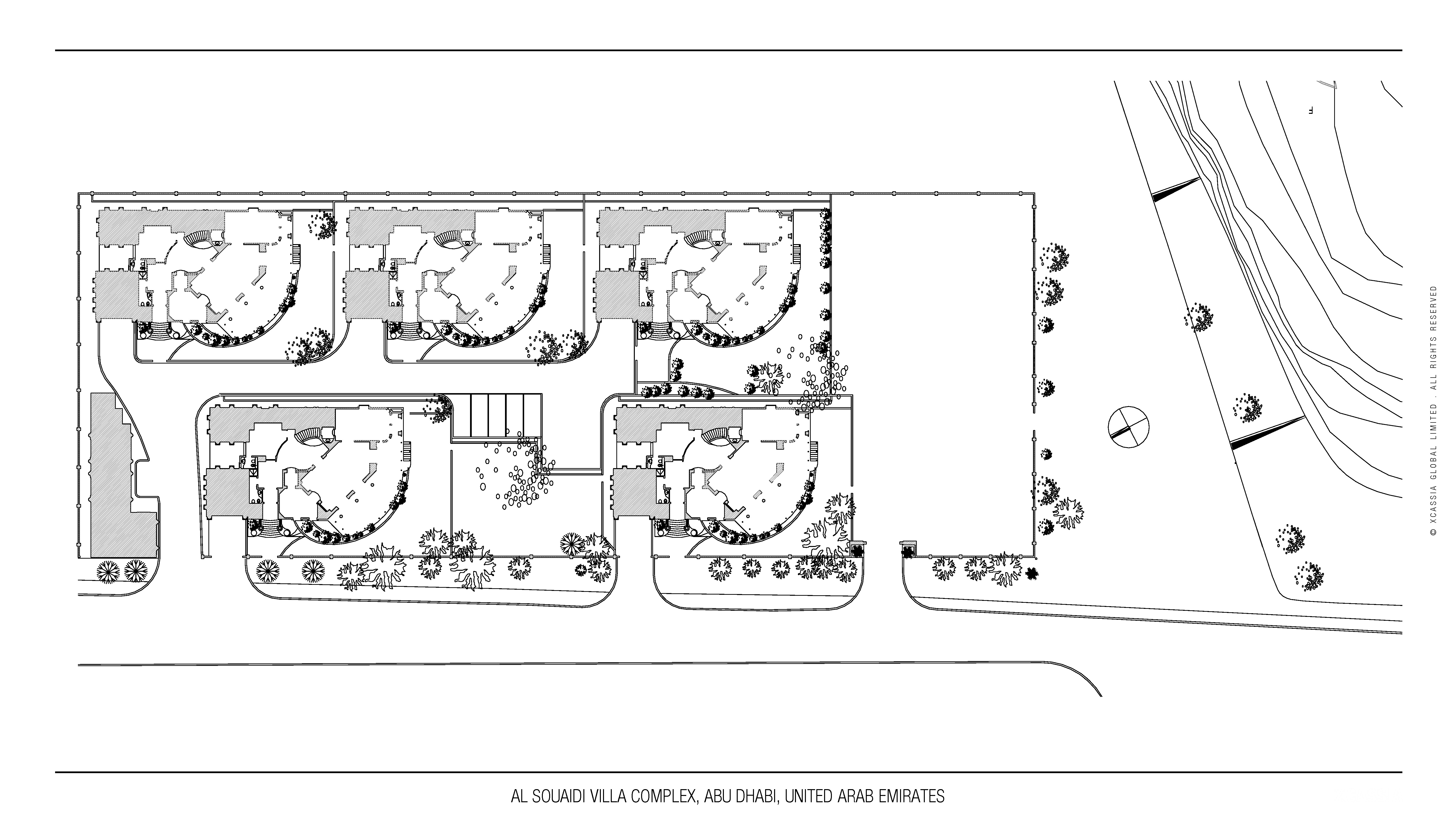
Located in the exclusive Al Bateen district of Abu Dhabi, the Al Souaidi Villa Complex is a gated coastal enclave comprising five generously scaled villas, each spanning approximately 650 square meters—totaling a built-up area of 3,250 square meters. The project delivers a private, secure, and highly livable environment, blending refined Mediterranean styling with unobstructed views over a tranquil lagoon.
Commissioned by a private client seeking architectural and interior design elegance grounded in an ecclectic contemporary context, the design responds with a carefully balanced language of soft stucco façades, terracotta roof tiles, and finely crafted ironwork. Each villa is independently articulated yet unified through a master plan that privileges orientation—ensuring every residence enjoys clear sightlines toward the sea and optimal privacy from neighboring volumes.
The site strategy accommodates a future phase for the client’s private residence, reserving a prime parcel within the compound for its eventual integration. Generous rooftop terraces, shaded loggias, staff quarters, and tiered landscaping reinforce the residential quality of the complex while anchoring it within a richly planted and breezy coastal setting.
This project reflects a timeless interpretation of Mediterranean architecture adapted for the Gulf—understated, enduring, and thoughtfully proportioned.
