

(1996) Ahlam Tower
client : Jamil Ibrahim & Selim Saabtypology : Residential
services : Architecture
where : Beirut, Lebanon
Retrospective 1991-2000 video: https://www.instagram.com/p/CPyTSojDdNX/
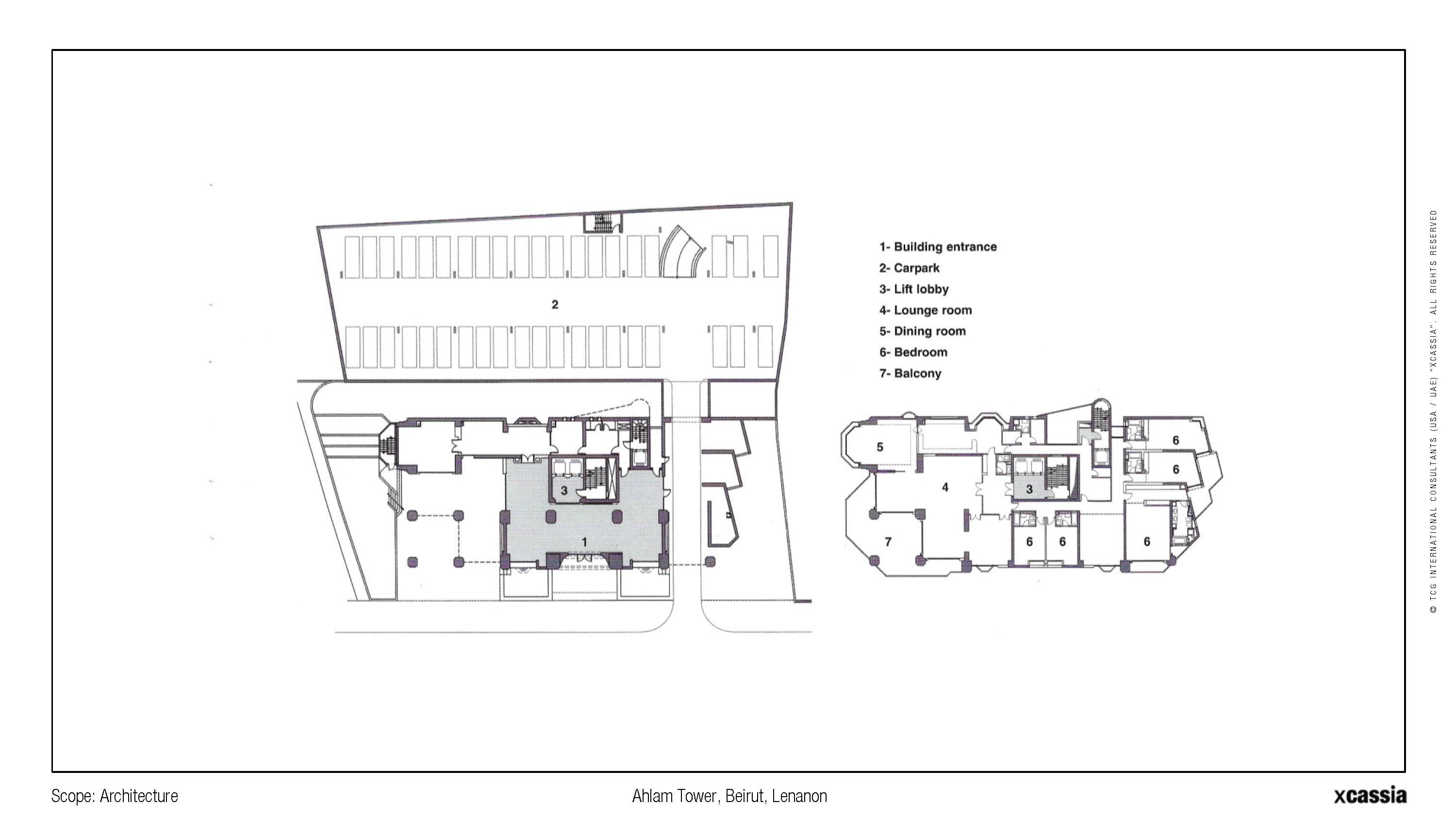
Al Ahlam Tower, translating to "The Building of Dreams," is a 20-story residential structure located in Beirut's Ain el Mreisseh district. Each floor encompasses approximately 900 square meters, offering residents panoramic views of the Mediterranean Sea and the Beirut coastline. The tower is situated on a prominent corniche, ensuring that these vistas remain unobstructed.
A notable feature of Al Ahlam Tower is its integration with the historic fishermen's port of Ein el Mreisseh. This port is directly connected to a small bay located on the tower's lower basement level, accessible from the sea via a tunnel running beneath the coastal road. Each apartment is allocated a docking space suitable for small boats, allowing residents to conveniently access the sea.
The building offers various amenities, including basement-level parking with rear street access, staff accommodations, storage units, rooftop tennis courts, and ground-level private gardens. Architecturally, the design emphasizes unobstructed coastal views for all apartments, with balconies that progressively extend outward from the main structure. The façade features a combination of polished and sandblasted granite cladding, accented by white ceramic on column and wall corners to enhance visual contrast.
The Ein el Mreisseh fishermen's port, located adjacent to the tower, is a historic landmark in Beirut. Access to the sea from this port now runs beneath the waterfront boulevard.
