

(1992-1996) Crowne Plaza (now Millennium Plaza Downtown Dubai
client : EPICOtypology : Mixed-Use Hospitality & Residential, Commercial
services : Architecture, Interior Design
where : Dubai, United Arab Emirates
Retrospective 1991-2000 video: https://www.instagram.com/p/CPyTSojDdNX/
This 90,000 sqm mixed-use facility includes a 405-room Crowne Plaza hotel, a furnished apartment block of 226 units, a two story commercial center and an office tower.
This was the largest development on Sheikh Zayed Road when it was completed in 1997.
Innovative and well balanced in its forms and massing, the Crowne Plaza complex inspired numerous other developments in its vicinity and was instrumental in transforming this area into Dubai's newest business district.
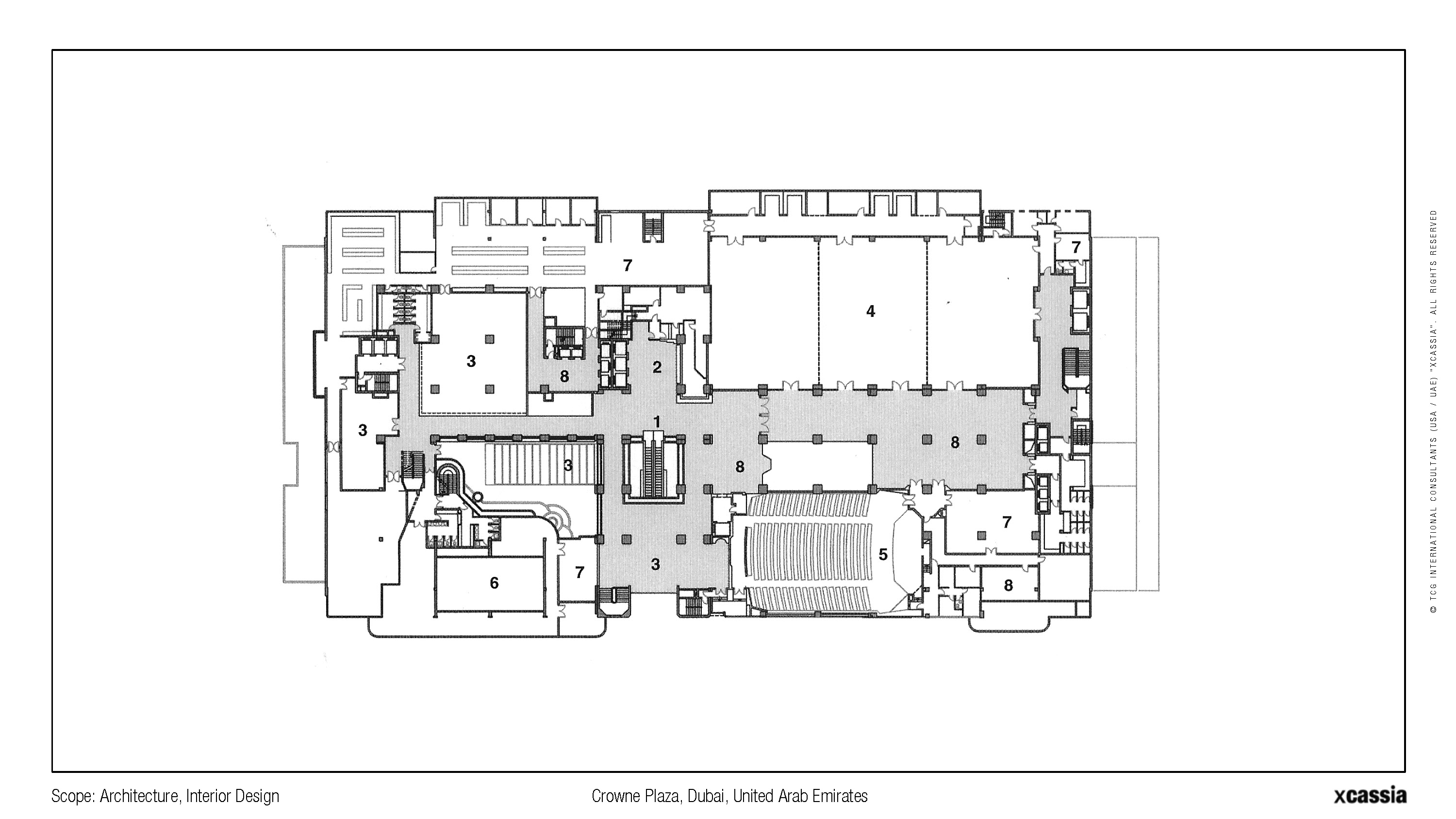
Holiday Centre is located on Sheikh Zayed Road in Dubai. It was the largest development when it was completed. It inspired numerous other developments in its vicinity and was instrumental in transforming this area into Dubai’s newest business district. This 90,000 sqm mixed-use facility is a composition of several buildings and various services. There are 4 main parts; a Commercial mall of 16,000 sqm, 420 rooms and suites in the 5-star Crowne Plaza hotel, 226 furnished apartments with 5-star service managed by Bass International, and a mixed-use tower for offices and residential apartments. The complex has parking space for 600 vehicles, part underground and part n the open at the back.
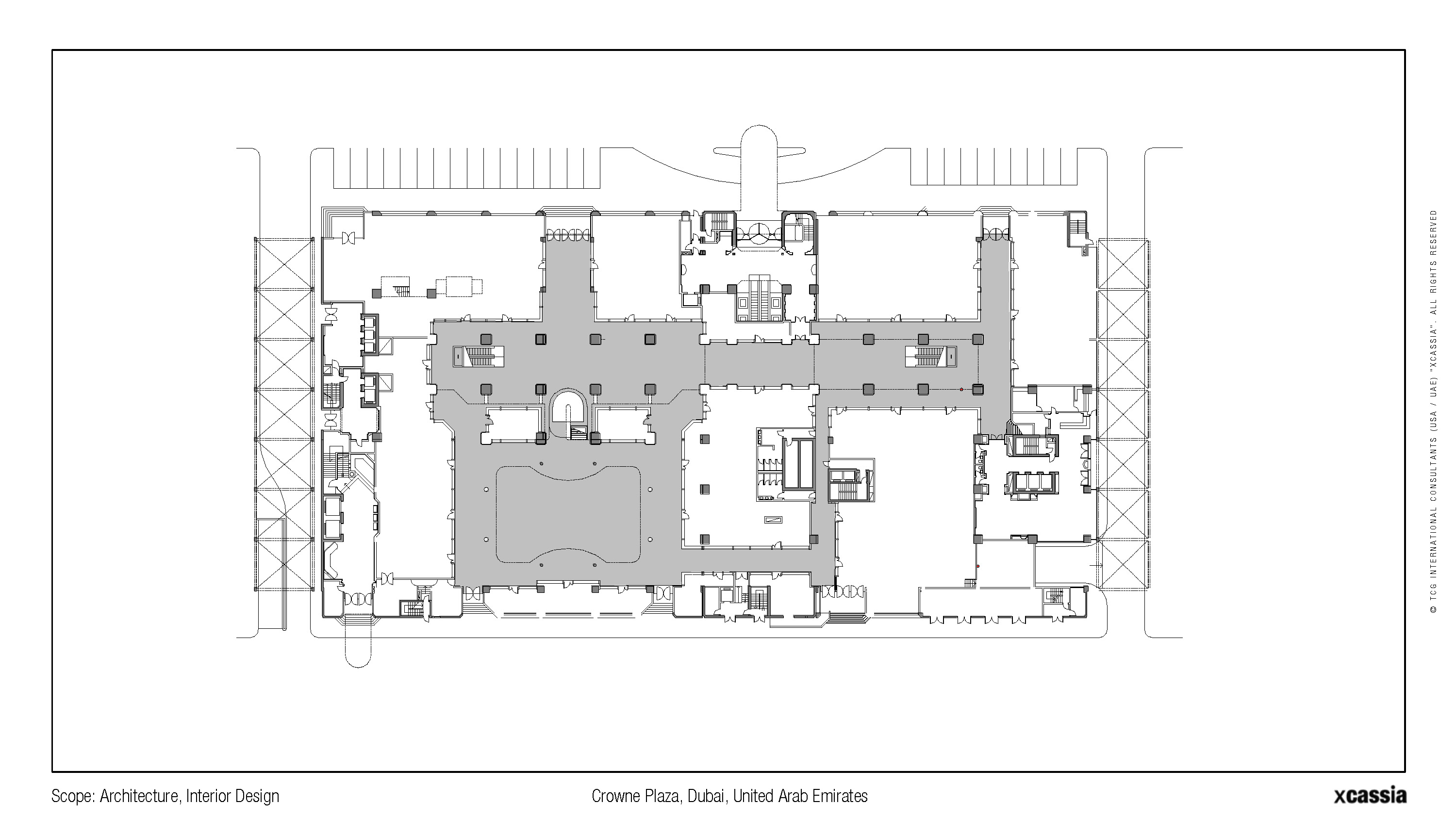
The complex is shaped in a certain manner to obtain maximum use of the space. In volume, it has a large base of 3 to 4 stories built to the outside limit of the site boundary. This base contains the shopping mall and has access form the front side on the main road and also from the car park at the back. The mall has a large number of shops as well as a supermarket. It is self contained and animated with large and high open that distract visitors from the feeling of being totally inside a controlled weather. This makes the shopping journey pleasant and enjoyable. It is linked to the hotel entrance that has two giant escalators lifting people to the grand foyer and the world of 5-star hospitality.
Crowne Plaza is the operator of the hotel. Complete with all sizes of rooms and suites, numerous international restaurants, a swimming pool, a large theatre, and one of the largest ballrooms in Dubai. It is a world on its own. What truly makes it feel that way is the lively design achieved mainly with the play of colors, material, shapes and forms and most importantly natural daylight. Whether in the suites, the foyer or the lobbies of the theatre and the grand ballroom, skylights and floor-to-ceiling windows allow ample of light, and sometimes sunshine, to add a living movement to the inside space. The 5-star hotel managed furnished apartments have access through the hotel. The building block is connected to the one of the hotel. It caters for the long term guests who wish to settle in a more like home environment.
The tower of offices and residential apartments is separated from the other towers in sense of distance, access and orientation. It rises from the base volume of the complex and has its own entrance to the side.
The architectural concept that brings together all those facilities, united in way and separated in another, is based on a successful combination of sculpting and people-flow treatment. In volume, the base of the project sits squarely to the limits of the site. As towers are placed over it, the architect makes sure to create a link and a unity between them. The hotel tower comes alone right at the edge of the main façade disrupting the horizontal movement of the base with its vertical lines and its grand portico over the entrance. The other two towers rise with a strong link with the base. On both sides, and from all corners of the base block, pitched volumes rise at an angle to meet with the corners of the towers and continue in form, texture and color to the top of the buildings. They look as if the towers have melted to form the base, or the latter has grown organically like giant exotic flora. As is the case in most of Cassia’s buildings, the top of all towers are crowned – an ideal opportunity for the Crowne Plaza hotel.
