

(1984) Sofitel Hotel
client : Groupe Accortypology : Hospitality
services : Architecture
where : Seoul, South Korea
Retrospective 1981-1990 video: https://www.instagram.com/tv/CPxSImAji4m/
The concept for this project was based on the request for a modern hotel that would meet all of today''s technological requirements for the service and comfort of 5-star hotels. It was also required that it relates to the local culture by integrating details inspired from the Korean traditional architecture.
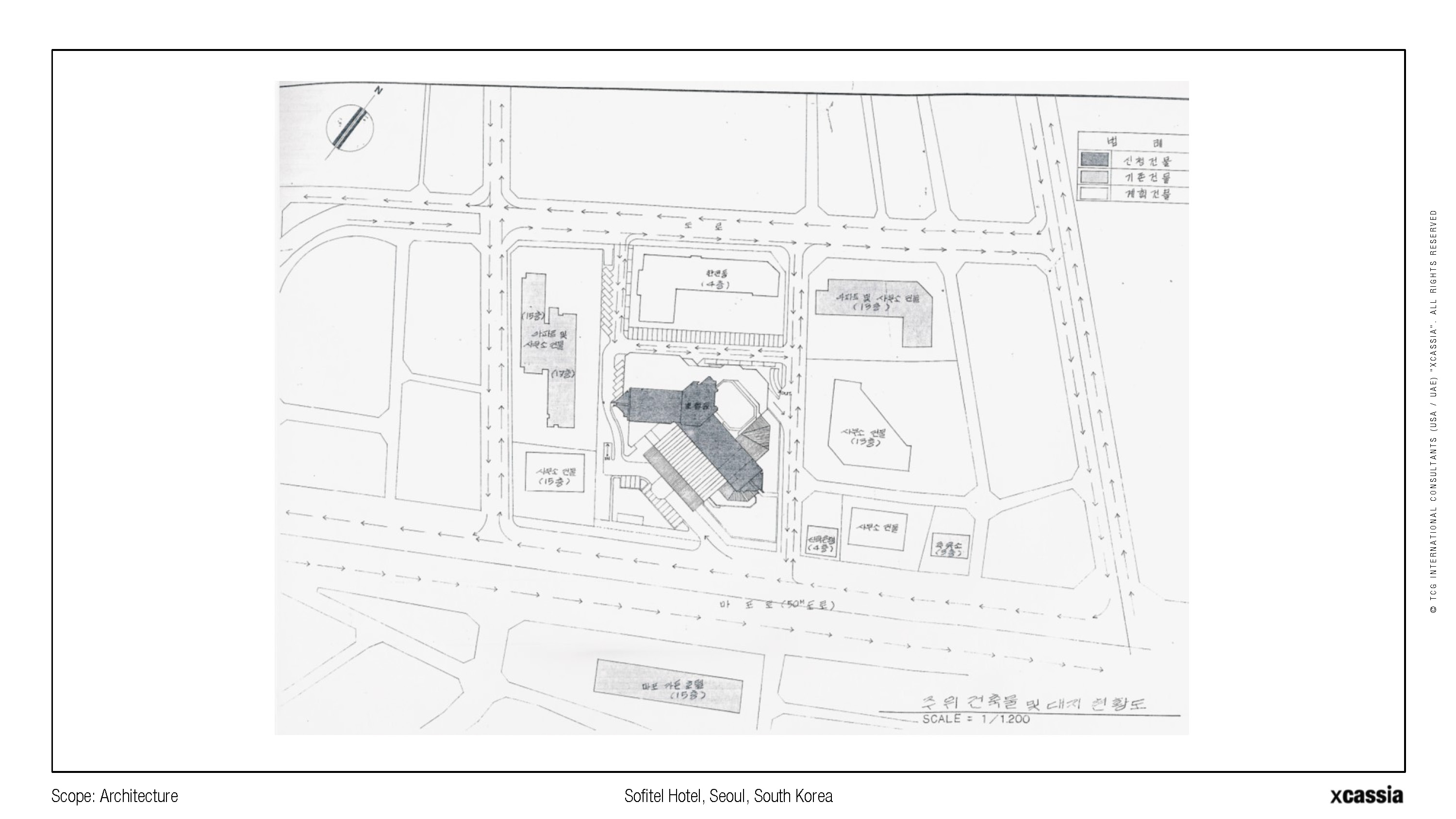
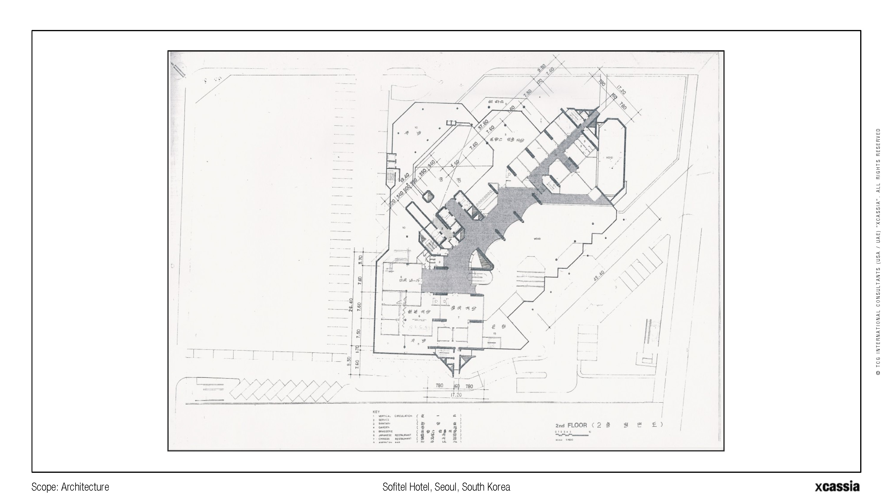
This hotel was planned with 560 rooms and suites, 66 apartments, and designed to be built on a site of 10.000 sqm; in the centre of Seoul city. It houses a series of facilities including 4 restaurants and a health club. It also has a number of features such as a suspended open swimming pool - covered in winter. It has a training golf course on the terrace of the 4th floor, and a number of meeting rooms adjoining a banqueting hall for 800 people. The first and second basements are used as a commercial centre connected to an underground network of commercial galleries of adjoining developments - a common urban practice in Korea.
The massing of the hotel is composed of two towers. They intersect at a wide angle around the service area where the stairs and elevators are located. One tower rises slightly higher than the other. They both face the main corner of the site where the entrance of the hotel is located as well as a small corner garden on the street level. The whole complex is sculptured to look like a contemporary piece of jewelry. All corners of the volume are sharply visible as the lines stretch uninterrupted from ground level to the top. A slanted volume covers the grand entrance, and high above it, at the top floor, a part of a restaurant is protruded to add movement to the overall composition and a panoramic scenic view to the dining area.
The plan of the hotel is placed at an angle of 45 degrees from the main street. This is to provide all the rooms with an orientation towards the deepest perspective and most beautiful views. The same goes for the swimming pool and the health club on the 4th floor, where they overlook the nearby river and the city.
- 520 Rooms Hotel
- 66 Luxurious Suites of 3 & 4 Bedrooms living and dining room
- 7 Restaurants
- 3 Bars
- One Lounge Bar
- Reception Hall
- Conference rooms & Banqueting
- Swimming Pool and Health Club
- Squash Courts and Golf Training Course
- 12000 sqm of Commercial Arcade
- 450 Underground Car park
