

(1989) Rotana Tower
client : HE Sheikh Khalifa Bin Seif Al Nahyantypology : Mixed-Use
services : Architecture
where : Abu Dhabi, United Arab Emirates
Retrospective 1981-1990 video: https://www.instagram.com/tv/CPxSImAji4m/
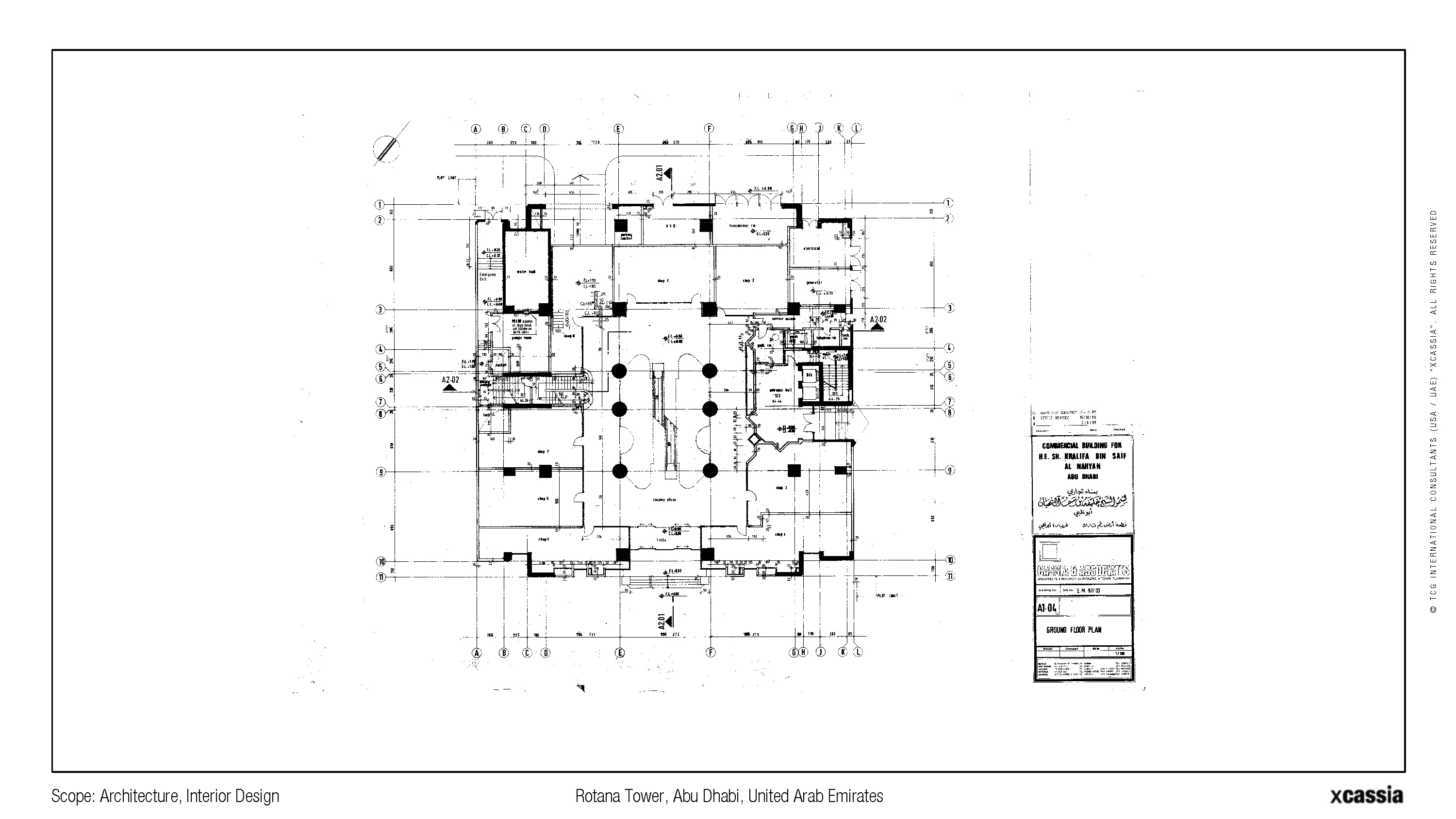
One can refer to it as the great white citadel with the blue tinted windows. This tower of 36000 sqm is a multipurpose building. It has a big shopping mall in the first 4 floors with various retail outlets and offices, and 17 other floors of large and luxurious apartments. It is a sculptural masterpiece of a fine detailed composition.
The shopping mall has a grand entrance on the main street, and a delivery bay on the back. All the shops are located inside and within one large space of 4 stories high. Levels are linked with elevators and escalators, and overlook a spacious middle atrium. This atrium, limited between all the surrounding shops and the building above is illuminated by artificial lighting in a way to imitate natural daylight.
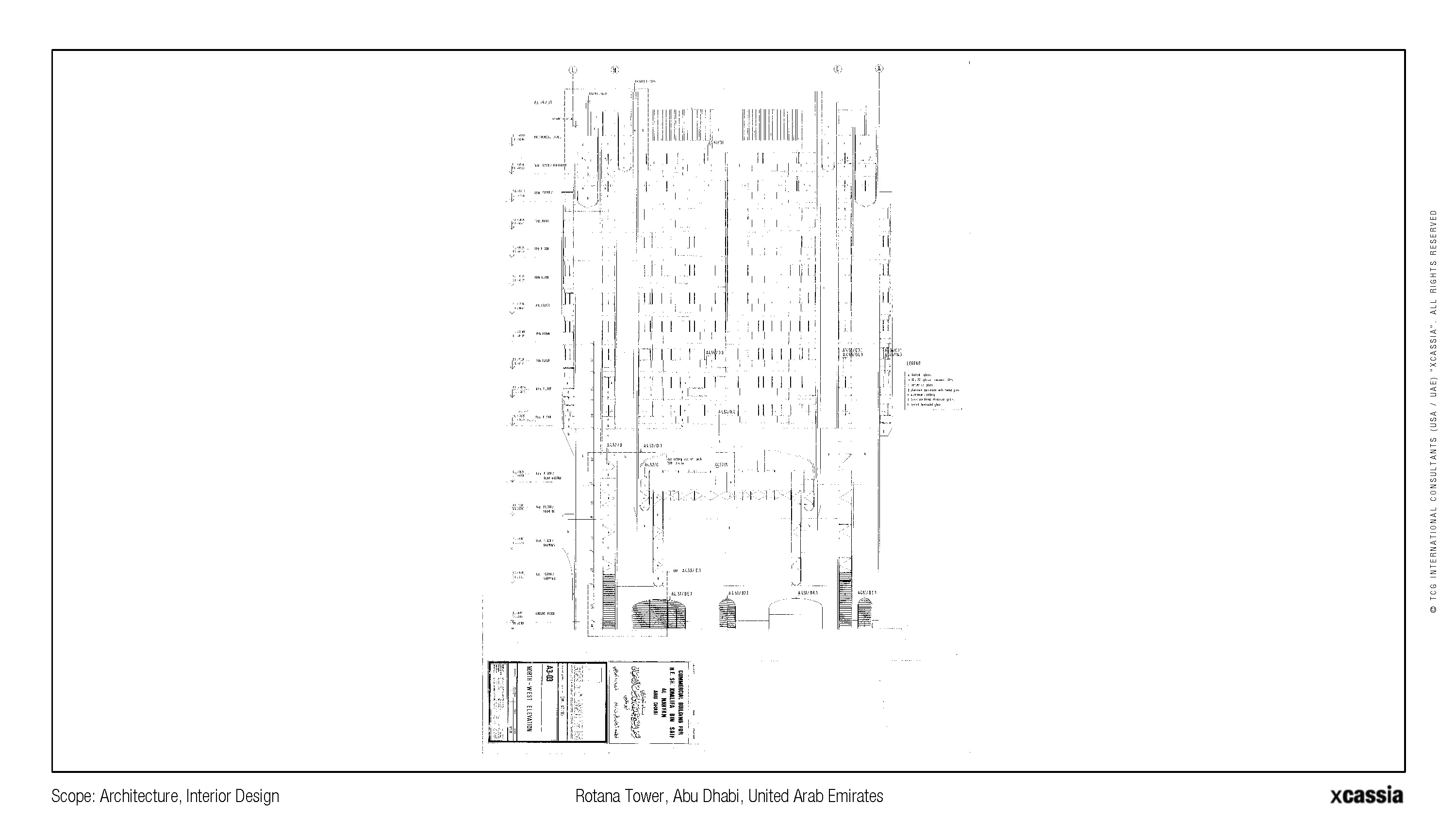
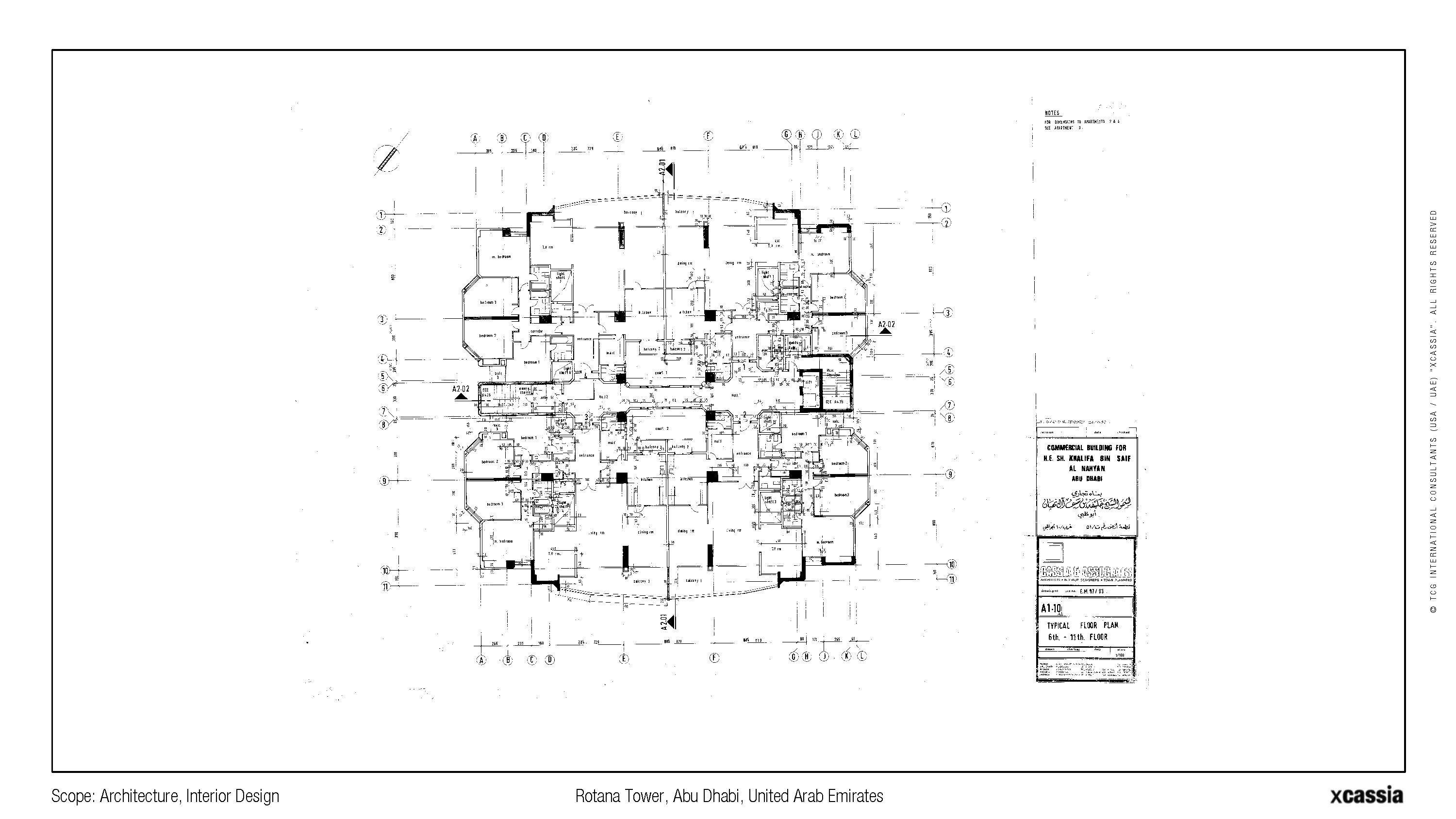
The 17 floors of apartments are clearly read by the presence of wide balconies on both major sides of the building. The reason all apartments were placed starting from the fifth floor and above is to provide them with open uninterrupted views. Windows and balconies on all apartments are covered with aluminum and blue-green tinted glass. Openings for all bedrooms are made in a form of small doors that open directly to very small balconies. This is one of the unique characteristics seen through all the buildings by the architect. They provide full transparency and a proper, though small, outdoor space for every room.
The building volume is very monumental. Covered completely in white ceramic tiles, it has very strong vertical lines that make it look like a citadel. It is also very well animated with strong movements of curves and architectural features to highlight different parts and functions. The mall, front and back, is highlighted by the extruded volume wrapped in a curvilinear edge. The entrance to the residential section, located on the side that faces a wide and planted street corner, is also sculptured in a slick manner as a grand arched and welcoming gateway.
Grand as it stands; it seems simple and complicated at the same time. It is elevated and crowned decorated and ornamented as one whole body dipped in white.
