

(2001) Faraj Bin Hamoodah Tower
client : HE Faraj Bin Hamoodahtypology : Residential Highrise
services : Architecture
where : Abu Dhabi, United Arab Emirates
This 9,500 sqm residential project in Abu Dhabi was conceived from the outset as a bold, contemporary statement, with the client’s brief placing particular emphasis on the building’s shape. The design approach combines rigorous functional planning with sculptural form-making, creating a distinctive urban presence while maximizing the site’s development potential.
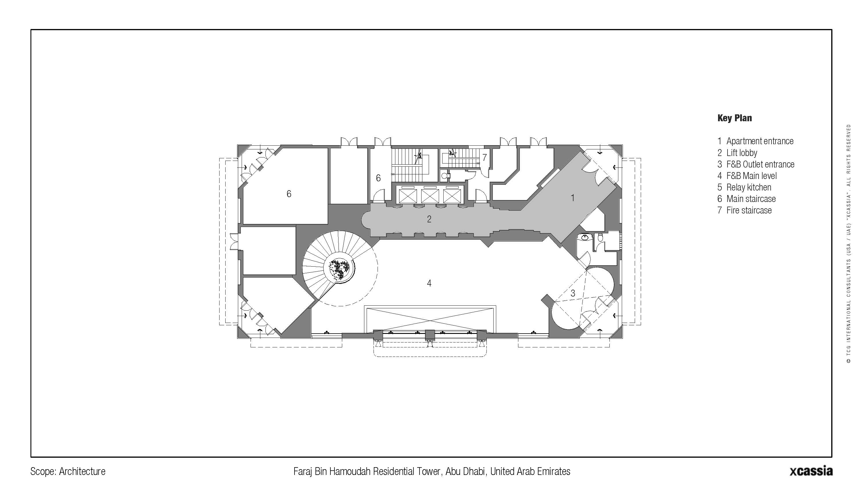
The ground floor is strategically organized to provide residents and tenants with a dignified and efficient arrival experience, carefully calibrated to the site’s orientation and programmatic demands. Entrances for apartments and offices are positioned on the northeast façade, while commercial access is concentrated along the southwest edge. With the main circulation core placed on the northern side, the ground, basement, and mezzanine levels accommodate retail and commercial uses in layouts optimized for visibility and accessibility. This planning logic informs the symmetrical massing and the organizational framework for the apartments above.
In line with Abu Dhabi’s development priorities, the design leverages every permissible square meter of built-up area. A cantilevered volume above the mezzanine level adds significant floor space, introducing both opportunity and complexity: maintaining a coherent building form despite the volumetric projection. The solution lies in a continuous vertical articulation — straight, unbroken lines rising from the ground to the crowning architectural feature — framing the cantilever and uniting the mass. Executed in light-colored cladding, this vertical framework becomes both a compositional device and a signature gesture characteristic of Cassia’s architectural language.
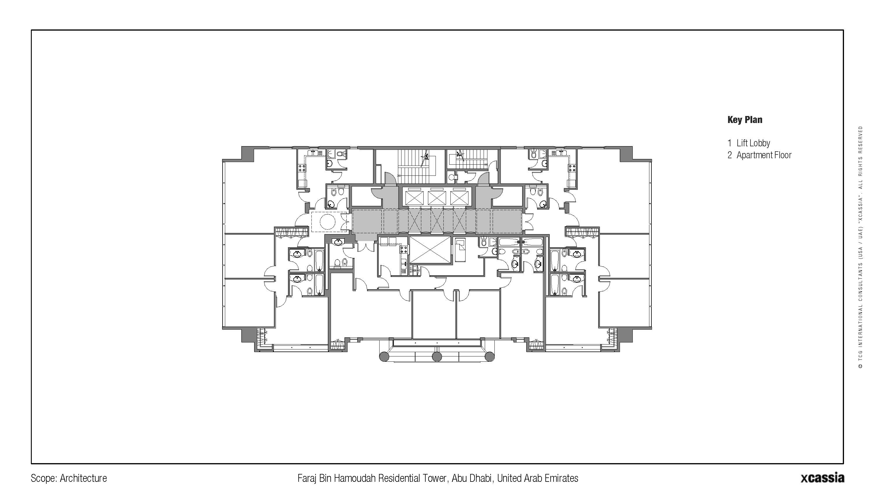
The façades are organized into three distinct vertical zones: the first two dedicated to ten typical floors of two-bedroom apartments, and the uppermost zone comprising five levels of larger four-bedroom residences. This zoning, expressed in both proportion and detail, distinguishes each programmatic layer while maintaining an overarching formal unity.
Materiality and color further refine the composition. Light cladding, subtle tonal variations, and careful modulation of the building envelope create a balanced and harmonious presence — a simple yet elegant architectural language that achieves clarity, coherence, and a strong identity within Abu Dhabi’s evolving skyline.
