

(2003) Seef Residential Tower
client : Al Khaleej Development Co.typology : Residential Highrise
services : Architecture
where : Manama, Kingdom of Bahrain
The Seef Residential Tower contains fully furnished and equipped apartments ranging from studios to 3-bedroom units. It caters to both short and long-term stays, providing a prestigious managed living experience.
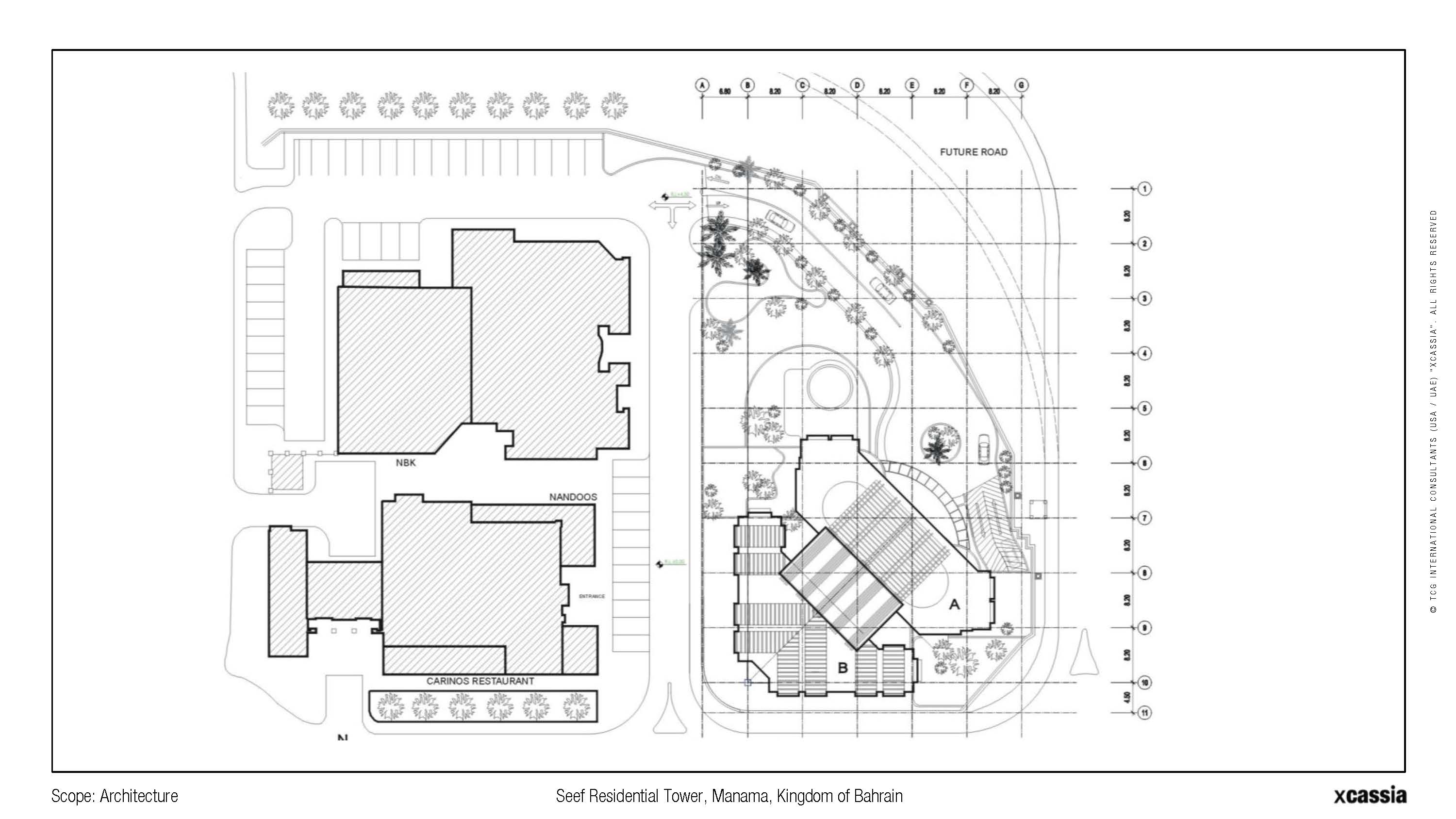
To ensure a dynamic visual composition and enhance the site's context, the project is divided into two blocks: Block A with 15 levels and Block B with 19 levels. This design approach adds variety to the development while considering the views of the existing Seef Office Tower and optimizing orientations towards the sea and city. To create a balanced mix of functions, the project includes up to 250 sqm of prime commercial space along the west and South Street front of the building.
The project demonstrates a commitment to learning from the experiences of other Gulf States. In response to the parking challenges faced by cities, the Bahrain municipality and our client have taken a proactive approach. The proposed solution includes one underground basement and a ground floor parking level to accommodate both the new scheme and existing Seef Tower tenants. Currently, the parking capacity stands at 68 cars in the basement, 51 on the ground floor, and 16 on the first floor, totaling 135 cars.
